Gather House – Không gian gắn kết tràn ngập sắc xanh và ánh sáng của gia đình 5 thành viên
- Content
- 0 Comments
Thông tin dự án:
Tên công trình: Gather House
Địa chỉ: Trảng Bom – Tỉnh đồng Nai
Gather House là một ngôi nhà tràn đầy yêu thương của cặp vợ chồng và ba người con tại thị trấn Trảng Bom, huyện Đồng Nai. Gia chủ quyết tâm biến ngôi nhà này thành nơi gắn kết các thành viên trong gia đình, nhằm xây dựng một hệ sinh thái tình cảm bền vững và mạnh mẽ.

Mặt cắt của công trình
Phía trước tầng trệt là khu để xe có mái che bằng lam, đảm bảo sự thông thoáng và không cản trở tầm nhìn vào các không gian bên trong. Bên trong ngôi nhà được bố trí rõ ràng với phòng khách, bếp, phòng ăn, phòng ngủ bố mẹ và phòng làm việc.

Mặt bằng bố trí tầng trệt

Tầng trệt là không gian sinh hoạt chung của cả gia đình

Tổ ấm thoáng mát, chan hòa yêu thương của gia đình trẻ

Nơi làm việc của ba mẹ được bố trí gần gũi thiên nhiên và ngập tràn ánh sáng

Một góc nhỏ trong căn phòng ngủ hướng ra nhà thờ
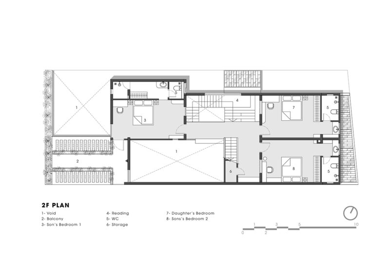
Tầng 1 được thiết kế Gather House – không gian gắn kết tràn ngập sắc xanh và ánh sángđặc biệt cho các con với 3 phòng ngủ, tất cả đều hướng ra sảnh và hành lang chung, tạo nên một không gian gắn kết và gần gũi. Đây là nơi lý tưởng để các con giao lưu và kết nối thường xuyên. Khu vực chiếu nghỉ cầu thang rộng rãi, được tận dụng làm góc đọc sách, trong khi hành lang rộng rãi có thêm quầy bar để cả gia đình cùng nhau thư giãn.

Mặt bằng bố trí lầu 1

Cầu thang được thiết kế rộng để kết hợp làm nơi đọc sách


Cả ngôi nhà ngập tràn ánh nắng và sắc xanh của cây cối

Phòng ngủ hướng ra sảnh và hành lang chung tạo không khí quây quần vào nhau
Từ sảnh, hành lang, cầu thang lầu 1 và 2 có thể dễ dàng quan sát và liên thông với khu vực bếp ăn, phòng khách nhờ khoảng thông tầng. Điều này cho phép các bé theo dõi mẹ nấu ăn và cảm nhận rõ ràng mùi thơm của món ăn.

Khoảng thông tầng giúp không gian chung trở nên thông thoáng và tràn ngập ánh sáng
Khu vực lầu 2 phía trước là không gian tĩnh tâm cầu nguyện cho gia đình, với cửa sổ hướng ra nhà thờ. Sân thượng đã được trồng cây xanh để thư giãn. Phía sau sẽ được phát triển thành phòng trưng bày kỷ vật gia đình và không gian phơi đồ. Điều này cần phải thực hiện ngay để tối ưu hóa công năng của toàn bộ khu vực!

Mặt bằng bố trí tầng 2
Không gian mái ở giữa nhà được thiết kế với các thanh bê tông kết hợp cùng mái kính, nhằm tối ưu hóa việc lấy ánh sáng tự nhiên. Với tinh thần của một gia đình Công giáo, chúng ta nhớ rằng khi Chúa tạo ra thế giới này, ngày đầu tiên Ngài đã tạo ra ánh sáng. Do đó, ánh sáng tự nhiên là yếu tố vô cùng quan trọng. Việc cắt nhiều ô cửa tại các vị trí khác nhau và kết hợp với lam mái kính ở trung tâm ngôi nhà không chỉ giúp ánh sáng len lỏi khắp nơi mà còn làm cho không gian trở nên lung linh và đầy thú vị.

Tầng mái cao, thoáng kết hợp hệ mái kính giúp không gian tràn ngập ánh sáng
Các cửa sổ mái và mặt tiền được thiết kế hình chóp để tương thích với hình dạng của nhà thờ gần đó, tạo nên một tổng thể ngoại thất hài hòa. Nội thất được thiết kế đơn giản và rõ ràng. Ánh sáng tự nhiên là điểm nhấn chủ đạo, thay đổi theo từng giờ để tránh sự đơn điệu.


Ô cửa kính được bố trí ở các vị trí khác nhau kết hợp với lam mái kính ở giữa nhà tạo nhiều tia sáng xen kẽ rọi trên tường và nền nhà
Với phong cách thiết kế nhẹ nhàng và ấm cúng, Gather House không chỉ đơn thuần là một ngôi nhà mà còn là tổ ấm tràn ngập yêu thương. Đây chính là nơi ghi dấu và lưu giữ những khoảnh khắc buồn, vui, hạnh phúc của cả gia đình nhỏ trong suốt quãng đường đời.
Xem thêm các bài viết: Tại đây
AKITEK.vn – Nét vẽ từ tâm, nâng tầm cuộc sống
Liên hệ: KTS. KEN NGUYEN
SĐT: 0916.961.139
Câu hỏi khi gia chủ muốn và chuẩn bị xây nhà
- Bạn cần chuẩn bị những gì trước khi bắt đầu xây nhà ?
- Có thật sự cần thuê đơn vị thiết kế không ?
- Xây nhà trọn gói có được ưu đãi gì không ?
- Cần lưu ý những gì khi thiết kế nhà để tối ưu không gian ?
- Chi phí xây nhà bao gồm những khoản nào
- Bạn nên lựa chọn công ty nào ở Tp.Hcm thiết kế xây nhà ở uy tín ?
- Bạn nên lựa chọn công ty nào ở Tp.Hcm thiết kế xây nhà phố uy tín ?
- Bạnnên lựa chọn công ty nào ở Tp.Hcm thiết kế biệt thự uy tín ?
- Bạnnên lựa chọn công ty nào ở Tp.Hcm thiết kế villa uy tín ?
- Bạn muốn tìm công ty tư vấn thiết kế nội thất nhà ở tphcm ?
Xem ngay bài viết dưới đây để tham kháo nhá: Xem ngay
tìm kiến trúc sư thiết kế nhà tại tp hồ chí minh, công ty thiết kế kiến trúc, thiết kế kiến trúc, thiết kế nhà ở, thiết kế nội thất nhà ở , thiết kế mô hình kiến trúc, tiêu chuẩn thiết kế nhà ở riêng lẻ, thiết kế nhà ở, thiết kế nhà ở kết hợp cho thuê phòng trọ, bản vẽ thiết kế nhà ở, mẫu thiết kế nhà ở nông thôn, thiết kế nhà vườn đẹp ở nông thôn, thiết kế nhà ống vừa ở vừa cho thuê, ý tưởng thiết kế nhà ở, bản đồ thiết kế nhà ở, thiết kế nhà ở 2 tầng, thiết kế nhà ở cấp 4, thiết kế nhà ở quê, thiết kế quán ăn kết hợp nhà ở, thiết kế chiếu sáng kiến trúc, thiết kế chiếu sáng công trình kiến trúc cổ, thiết kế chiếu sáng kiến trúc tòa nhà, công ty thiết kế kiến trúc, thiết kế mô hình kiến trúc, thiết kế chiếu sáng công trình kiến trúc, thiết kế kiến trúc là gì, thiết kế đồ họa đại học kiến trúc, nguyên lý thiết kế kiến trúc, các phong cách thiết kế kiến trúc, thiết kế kiến trúc nhà hàng, thiết kế kiến trúc hiện đại, thiết kế kiến trúc nhà đẹp, phí thiết kế kiến trúc, tư vấn thiết kế kiến trúc nhà ở,công ty thiết kế kiến trúc tphcm, công ty tnhh thiết kế xây dựng kiến trúc akitek việt nam, thiết kế kiến trúc chung cư, thiết kế kiến trúc nhà phố, thiết kế nhà 7×14 kiến trúc pháp, thiết kế văn phòng kiến trúc tiêu chuẩn thiết kế kiến trúc, công ty tư vấn thiết kế kiến trúc việt nam, kiến trúc sư thiết kế nội thất, thiết kê quán cafe, thiết kế nội thất nhà hàng, thiết kế nhà hàng, bản vẽ thiết kế nhà hàng, thiết kế khách sạn, thiết kế villa đẹp, thiết kế biệt thự hiện đại, nhà hàng đẹp,thiết kế nhà hàng kiểu hàng, thiết kế nhà hàng trung hoa , thiết kế nhà hàng sân vườn, thiết kế nhà hàng tiệc cưới, thiết kế quán cafe đẹp, thiết kế nội thất quán cafe, thiết kế quán cafe nhỏ đẹp giá rẻ, thiết kế nội thất căn hộ, thiết kế nội thất chung cư.Gather House

